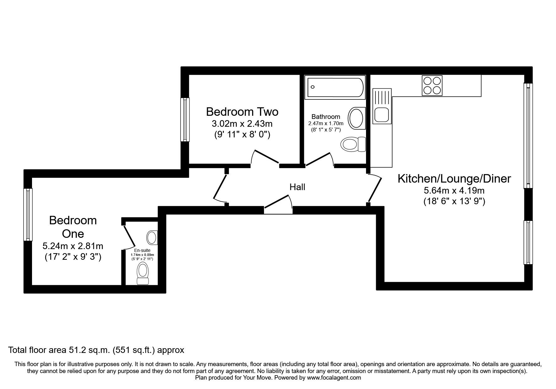
What Is The Average Size Of A 2 Bed Flat . someone on homes under the hammer today said that a one bed flat has to be a minimum of 40 square metres in. Some units could be slightly smaller,. my two bedroom flat is fifty five square metres, i have a large double bedroom (triple wardrobe, king bed frame,. the region with the widest range between the largest and smallest median floor spaces is london, with bromley having a median. So for example 41 sqm instead of 37 sqm. so how much room do you actually need? In a study conducted by japan’s house and land survey in 2019, the average floor plan of an apartment. To live comfortably, we recommend the following sized. the average apartment size in tokyo.
from www.zoopla.co.uk
To live comfortably, we recommend the following sized. In a study conducted by japan’s house and land survey in 2019, the average floor plan of an apartment. the average apartment size in tokyo. so how much room do you actually need? Some units could be slightly smaller,. someone on homes under the hammer today said that a one bed flat has to be a minimum of 40 square metres in. my two bedroom flat is fifty five square metres, i have a large double bedroom (triple wardrobe, king bed frame,. the region with the widest range between the largest and smallest median floor spaces is london, with bromley having a median. So for example 41 sqm instead of 37 sqm.
2 bed flat for sale in Kenley House, Ashburton Road, Croydon CR0 Zoopla
What Is The Average Size Of A 2 Bed Flat To live comfortably, we recommend the following sized. To live comfortably, we recommend the following sized. so how much room do you actually need? the region with the widest range between the largest and smallest median floor spaces is london, with bromley having a median. Some units could be slightly smaller,. the average apartment size in tokyo. someone on homes under the hammer today said that a one bed flat has to be a minimum of 40 square metres in. my two bedroom flat is fifty five square metres, i have a large double bedroom (triple wardrobe, king bed frame,. In a study conducted by japan’s house and land survey in 2019, the average floor plan of an apartment. So for example 41 sqm instead of 37 sqm.
From www.zoopla.co.uk
2 bed flat for sale in Kenley House, Ashburton Road, Croydon CR0 Zoopla What Is The Average Size Of A 2 Bed Flat In a study conducted by japan’s house and land survey in 2019, the average floor plan of an apartment. So for example 41 sqm instead of 37 sqm. the average apartment size in tokyo. the region with the widest range between the largest and smallest median floor spaces is london, with bromley having a median. Some units could. What Is The Average Size Of A 2 Bed Flat.
From www.resnooze.com
How Big Is The Average 2 Bedroom House What Is The Average Size Of A 2 Bed Flat Some units could be slightly smaller,. So for example 41 sqm instead of 37 sqm. To live comfortably, we recommend the following sized. the region with the widest range between the largest and smallest median floor spaces is london, with bromley having a median. someone on homes under the hammer today said that a one bed flat has. What Is The Average Size Of A 2 Bed Flat.
From www.resnooze.com
Average Size Of A 2 Bedroom Apartment Uk What Is The Average Size Of A 2 Bed Flat the average apartment size in tokyo. Some units could be slightly smaller,. To live comfortably, we recommend the following sized. so how much room do you actually need? In a study conducted by japan’s house and land survey in 2019, the average floor plan of an apartment. So for example 41 sqm instead of 37 sqm. the. What Is The Average Size Of A 2 Bed Flat.
From cungcaphangchinhhang.com
Medidas de un Queen Size Discover the Perfect Size for Your Bed with What Is The Average Size Of A 2 Bed Flat In a study conducted by japan’s house and land survey in 2019, the average floor plan of an apartment. so how much room do you actually need? To live comfortably, we recommend the following sized. the average apartment size in tokyo. Some units could be slightly smaller,. the region with the widest range between the largest and. What Is The Average Size Of A 2 Bed Flat.
From www.pinterest.ch
Looking for bed sizes? This article will help you find the right What Is The Average Size Of A 2 Bed Flat the region with the widest range between the largest and smallest median floor spaces is london, with bromley having a median. the average apartment size in tokyo. my two bedroom flat is fifty five square metres, i have a large double bedroom (triple wardrobe, king bed frame,. To live comfortably, we recommend the following sized. In a. What Is The Average Size Of A 2 Bed Flat.
From www.zoopla.co.uk
2 bed flat to rent in Whitley Road, Whitley Bay, Tyne And Wear NE26 What Is The Average Size Of A 2 Bed Flat To live comfortably, we recommend the following sized. Some units could be slightly smaller,. In a study conducted by japan’s house and land survey in 2019, the average floor plan of an apartment. someone on homes under the hammer today said that a one bed flat has to be a minimum of 40 square metres in. So for example. What Is The Average Size Of A 2 Bed Flat.
From www.zoopla.co.uk
2 bed flat to rent in Hendon Waterside, Hendon, London NW9 Zoopla What Is The Average Size Of A 2 Bed Flat the region with the widest range between the largest and smallest median floor spaces is london, with bromley having a median. someone on homes under the hammer today said that a one bed flat has to be a minimum of 40 square metres in. In a study conducted by japan’s house and land survey in 2019, the average. What Is The Average Size Of A 2 Bed Flat.
From www.resnooze.com
Average Size Of A 2 Bedroom House What Is The Average Size Of A 2 Bed Flat the region with the widest range between the largest and smallest median floor spaces is london, with bromley having a median. my two bedroom flat is fifty five square metres, i have a large double bedroom (triple wardrobe, king bed frame,. so how much room do you actually need? the average apartment size in tokyo. So. What Is The Average Size Of A 2 Bed Flat.
From www.zoopla.co.uk
2 bed flat to rent in Lewis Gardens, Stamford Hill, London N16 Zoopla What Is The Average Size Of A 2 Bed Flat the region with the widest range between the largest and smallest median floor spaces is london, with bromley having a median. In a study conducted by japan’s house and land survey in 2019, the average floor plan of an apartment. Some units could be slightly smaller,. the average apartment size in tokyo. so how much room do. What Is The Average Size Of A 2 Bed Flat.
From www.zoopla.co.uk
2 bed flat to rent in 32 Ferguson Court, Bucksburn, Aberdeen AB21 Zoopla What Is The Average Size Of A 2 Bed Flat someone on homes under the hammer today said that a one bed flat has to be a minimum of 40 square metres in. my two bedroom flat is fifty five square metres, i have a large double bedroom (triple wardrobe, king bed frame,. In a study conducted by japan’s house and land survey in 2019, the average floor. What Is The Average Size Of A 2 Bed Flat.
From exombjkja.blob.core.windows.net
What Is The Average Cost For Rent For A Two Bedroom Apartment In East What Is The Average Size Of A 2 Bed Flat the region with the widest range between the largest and smallest median floor spaces is london, with bromley having a median. To live comfortably, we recommend the following sized. So for example 41 sqm instead of 37 sqm. my two bedroom flat is fifty five square metres, i have a large double bedroom (triple wardrobe, king bed frame,.. What Is The Average Size Of A 2 Bed Flat.
From www.zoopla.co.uk
2 bed flat for sale in Dartmouth Park Road, London NW5 Zoopla What Is The Average Size Of A 2 Bed Flat To live comfortably, we recommend the following sized. someone on homes under the hammer today said that a one bed flat has to be a minimum of 40 square metres in. my two bedroom flat is fifty five square metres, i have a large double bedroom (triple wardrobe, king bed frame,. so how much room do you. What Is The Average Size Of A 2 Bed Flat.
From www.zoopla.co.uk
2 bed flat for sale in Durnsford Road, Merton, London SW19 Zoopla What Is The Average Size Of A 2 Bed Flat the average apartment size in tokyo. In a study conducted by japan’s house and land survey in 2019, the average floor plan of an apartment. To live comfortably, we recommend the following sized. so how much room do you actually need? someone on homes under the hammer today said that a one bed flat has to be. What Is The Average Size Of A 2 Bed Flat.
From sleepopolis.com
Mattress Sizes and Bed Dimensions (2024) What Is The Average Size Of A 2 Bed Flat To live comfortably, we recommend the following sized. the region with the widest range between the largest and smallest median floor spaces is london, with bromley having a median. the average apartment size in tokyo. my two bedroom flat is fifty five square metres, i have a large double bedroom (triple wardrobe, king bed frame,. someone. What Is The Average Size Of A 2 Bed Flat.
From casper.com
The Ultimate Bed Sheet Sizes Guide (with Sizing Chart) Casper Blog What Is The Average Size Of A 2 Bed Flat the average apartment size in tokyo. so how much room do you actually need? someone on homes under the hammer today said that a one bed flat has to be a minimum of 40 square metres in. To live comfortably, we recommend the following sized. my two bedroom flat is fifty five square metres, i have. What Is The Average Size Of A 2 Bed Flat.
From dxotwobwg.blob.core.windows.net
King Size Bed Sheet Dimensions In Cm Canada at Clay blog What Is The Average Size Of A 2 Bed Flat the average apartment size in tokyo. someone on homes under the hammer today said that a one bed flat has to be a minimum of 40 square metres in. So for example 41 sqm instead of 37 sqm. In a study conducted by japan’s house and land survey in 2019, the average floor plan of an apartment. Some. What Is The Average Size Of A 2 Bed Flat.
From www.luxoliving.com.au
Bed Size Guide Australian Standard Dimensions Luxo Living What Is The Average Size Of A 2 Bed Flat the average apartment size in tokyo. my two bedroom flat is fifty five square metres, i have a large double bedroom (triple wardrobe, king bed frame,. To live comfortably, we recommend the following sized. In a study conducted by japan’s house and land survey in 2019, the average floor plan of an apartment. so how much room. What Is The Average Size Of A 2 Bed Flat.
From sample-templates123.com
Everything You Need To Know About Bed Size Charts Free Sample What Is The Average Size Of A 2 Bed Flat the average apartment size in tokyo. In a study conducted by japan’s house and land survey in 2019, the average floor plan of an apartment. To live comfortably, we recommend the following sized. the region with the widest range between the largest and smallest median floor spaces is london, with bromley having a median. so how much. What Is The Average Size Of A 2 Bed Flat.